Wembley Estate - comprising and historic home + stone cottage, sleeping 14 in total
Wembley Estate, Southern Highlands - 4pm check out Sundays and Public Holidays, except Summer Season
Wembley Estate is a one of a kind in the Southern Highlands. The Estate comprises two dwellings: an historic, stylish and captivating home and a recently built stone cottage, both set amongst an oasis of landscaped gardens.
Wembley House has soaring 3 metre ceilings and incorporates reclaimed doors and stained glass windows from the Queen Victoria Building and Carrington Hotel! Wembley Estate is set on 11 acres and has an incredible array of features:pool and spa, luxurious pool cabana with its own kitchen, bathroom and bedroom, adjoining indoor-outdoor entertaining area that combines the best of a shearing shed, sports bar and BBQ, a half basketball court, trampoline, herb garden, chicken run, farm animals, and plenty of parking for guests!
Wembley Cottage is a newly built, luxurious stone cottage located on the edge of the Wembley Estate of 11 acres. Elegant and private, Wembley Cottage offers a distinguished country holiday. With features such as a spa on the deck, indoor/outdoor fireplace, open plan living, and grand bi-fold windows and doors opening to the wrap around deck, guests can relax and unwind in privacy while feeling immersed in the surrounding green meadows.
Wembley Estate is therefore a perfect retreat and is located just west of Berrima town - an easy drive to cafes, restaurants, wedding venues, wineries and the like.
Please note:
- Whilst groups of up to 14 are welcome, Wembley Estate is not available for rowdy bachelor parties.
- Wembley Estate has an on-site caretaker who looks after the property and farm animals and can assist with any queries you might have whilst staying. His residence is private and away from the House and pool house and Cottage.
Where will I be?
Wembley Estate is situated in Medway, to the west of historic Berrima. It is close enough to town to be an easy drive for coffee or a meal, but far enough out to truly feel away from it all. This is an ideal property for guests attending a wedding in the Southern Highlands as The Bendooley, Centennial Vineyards, Eling Forest, The Loch and Artemis Estates are all within easy driving distance.
Why choose Wembley Estate ?
Wembley Estate is a truly exceptional Southern Highlands home. Set on an expansive 11 acre estate, Wembley House features a swimming pool, spa, basketball court, covered bar/games room and a large paddock with livestock, while Wembley Cottage is private and features a spa and a generous entertaining deck with indoor/outdoor fire.
Wembley House has been built in intricate detail using reclaimed features from both the Queen Victoria Building in Sydney and The Carrington Hotel in the Blue Mountains, and furnished throughout with exceptional antique pieces from around the world. Every detail has been thought of, with the addition of multiple TV's, games, etc. for the children. The pool house is self-contained so provides an ideal retreat for parents or grand-parents.
Wembley Cottage is a beautiful stone cottage with high quality features. The house features a spa on the deck overlooking the surrounding farmland, an indoor/outdoor fireplace and multiple outdoor seating areas to enjoy the fresh country air. The Cottage also has a full kitchen and laundry facilities, and is well equipped with heating and cooling, including underfloor heating and outdoor fans.
How is the property laid out?
- Wembley House
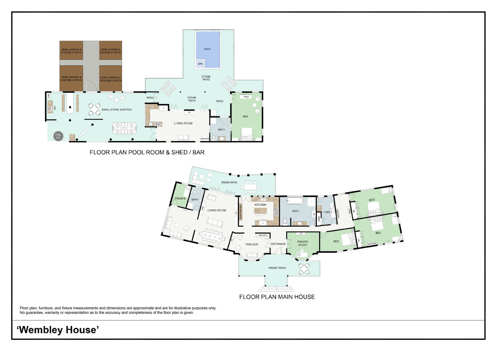
A long private 50m driveway reveals this beautiful property with manicured lawns and fountain. Enter through the ornate lead light doorway and you are greeted by the formal parlour room. In the main house there are 3 bedrooms, a Queen, a Queen with 2 singles and a master bedroom with a King. Shared by these bedrooms there is a truly exceptional family bathroom; an entirely open travertine tiled wet room with a feature reclaimed stained glass window from the Carrington Hotel, ornamental fireplace and a freestanding claw and ball bathtub. There is also a laundry in this section of the home with a washer, dryer, toilet and basin.
The heart of the house is the large kitchen with stained glass windows featuring a 5 burner range cooker, European appliances, granite bench tops and garden views. The large open plan living/dining area enjoys a large open fire, comfortable lounges and an antique French rectory dining table. Further to this, is the informal children's lounge, with additional TV, Wii and retro arcade games machine. The second family bathroom is accessed via the children's lounge, featuring a walk-in shower and a free standing claw and ball bath tub.
Across the lawn lies another real treat; a large covered entertainment area decorated in True Blue Aussie style - complete with bar, bar fridge, dart board, large gas barbecue, ping pong table and an outdoor TV! Adjacent to this games area is the pool house with double bed, separate lounge and a full kitchen with bi-fold windows that open to the undercover bar area - even the chef won't feel left out!
- Wembley Cottage
Wembley Cottage is located to the right of Wembley House. After entering the front door, you will step into the open plan living area with lounge with grand stone fireplace with large TV, kitchen and dining area - all with views to the surrounding green pastures. Open the doors to step onto the generous covered deck area which features a spa, outdoor lounge and fireplace, dining table, and bar area. The butlers pantry is located off the kitchen and has a large fridge/freezer, wine fridge and washing machine and dryer. There is a bathroom with shower and toilet downstairs. Upstairs are two King bedrooms and an additional bathroom with shower, bath and toilet.
What about outdoors?
Wembley Estate is set on 11 acres. At the front of the property there are beautiful lawns, an ornate fountain and a basketball court. To the rear of the home is a covered entertaining deck and open lawn area with a trampoline. The lawn leads to a paddock and children will love visiting the chickens, alpacas and resident pony! The covered bar area opens to a full kitchen garden (help yourself!) and the 12m pool with in-built heated spa.
The cottage was designed to enjoy the best of the fresh country air, with a wrap around covered deck featuring a spa, outdoor dining, outdoor lounge area with fireplace and a bar table with stools and BBQ. The deck overlooks the green pastures and dam.
Staying warm or keeping cool?
Wembley House has floor ducted heating and cooling throughout plus underfloor heating in the bathrooms and kitchen. The main lounge has a large open fireplace. The pool house has underfloor heating in the bedroom and bathroom and a gas fire in the lounge (but no air conditioning).
The cottage has a fireplace, underfloor heating throughout, radiator heaters and reverse cycle air conditioners in the bedrooms, and multiple outdoor fans on the covered verandah.
What about sheets, towels and other supplies?
Pillows, blankets, duvets, linen, bath towels and pool towels are all provided at this property.
Parking for cars, boats etc?
Two covered car ports are available for guests to use and further parking is available on the driveway or the half basketball court. Please do not park on the other lawn areas as there are irrigation and sprinkler systems that can be damaged by vehicles. There is a further undercover park at the cottage, as well as an additional uncovered park.
Is my dog or cat welcome to stay?
Sorry, Wembley Estate is strictly not pet friendly - due to chickens, horses and other farm animals.
Wildlife
Please note that due to the nature and location of this property, wildlife may be about including possums, kangaroos, spiders and snakes. We do whatever we can to keep the property safe and do work with a network of wildlife removal experts, however we cannot guarantee that you will not see any wildlife at the property. If you do, we will use our best endeavours to have the animal removed or to make the property safe, however no compensation whatsoever will be paid for any disturbance caused by wildlife. You must book the property knowing that this risk exists, even though very uncommon.
Is there any special information I should know about?
The Paddock Area- children must be supervised at all times. The chicken coop is protected by electric fencing - do not touch. Guests must not enter the fenced paddocks, interaction with the pony and alpacas must be over the fence only. Guests must not access the feed shed.
Kangaroos and wombats frequently visit the property, guests are reminded that these are wild animals and not to approach them.
The pizza oven and adjacent BBQs are not available for guests' use.
Please supervise children at all times, particularly around the pool, spa, and dams.
The trampoline is used entirely at your own risk.
The pool is accessed via multiple gates and is fully compliant with NSW regulations. Please note, however, one of the pool gates is the large corrugated iron barn door in the bar area and therefore must be latched at all times.
Wembley Estate is looked after by a caretaker who lives on the property. However you are assured of complete privacy as the property is not overlooked by the caretaker's residence.
Wi-Fi, Internet, Netflix or Pay TV - will I have it?
This property provides complimentary Wi-Fi and a password will be provided in your pre-arrival email, or will be available at the property. Please note however that neither the agency nor the owner can 100% guarantee that the Wi-Fi will work, and no compensation will be payable if problematic. If internet access is important to you, please have a backup plan. Smart TV's are provided in the lounge of the main house and in the sports bar area adjacent to the pool house.
What are the minimum stay rules?
- Summer Season: Between 2 and 7 nights, depending on the property
- Easter: 4 nights
- Long Weekends: 3 nights
- All other times: 2 nights
Are there any special Summer Season rules?
Please note that during Summer Season, our properties may have designated changeover days so as to make the cleaning rosters manageable. We also do not schedule arrivals on the Christmas, Boxing, and New Years Day public holidays.
About The Holidays Collection
This property is professionally managed by a dedicated holiday rental agency with offices in Gerringong, Hyams Beach and Bowral. We have over 270 properties in Kiama, Gerringong, Gerroa, Berry, Huskisson, Vincentia, Hyams Beach and the Southern Highlands. We offer guests 24/7 customer service - emergency calls only after hours, please.
STRA Permit ID: PID-STRA-51872




















































